- Genova, Ticinese
- Località
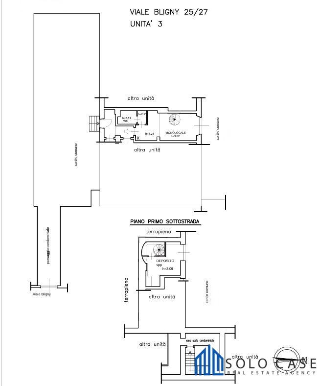
A pochi passi dalla prestigiosa Università Bocconi, in Viale Bligny, zona ricca di attività e servizi, nel corpo interno di un palazzo d' epoca Vecchia Milano, in vendita un appartamento appena ristrutturato.
Concepito per garantire un alto standard di comfort abitativo, l' appartamento è un grande monolocale di 35 metri quadrati, sviluppato in grande open space, bagno, oltre ad una comoda taverna raggiungibile tramite scala interna di 21 Metri quadri da utilizzare a proprio piacimento.
Lo stile industrial della casa si rispecchia nella tipologia della costruzione originaria, della quale sono state mantenute le altezze interne.
Gli affacci interni con grandi vetrate, garantiscono privacy e lontananza dai rumori esterni.
Ideale come propria residenza da abitare chiavi in mano oppure per assicurarsi una redditività certa.
Prezzo € 390.000
IVA: 4% prima casa, 10% seconda casa
Spese Condominiali € 2.000 circa/anno

- Classe Energetica